Atelier Kaitna Smetana Profil Projekte Gebietsbetreuung Kooperationen Kontakt
Aktuelle Projekte Innenraum
Sanierung/Revitalisierung/Umbau/Zubau Staedtebau/Raumplanung
Neubau Ausstellungen
Dorferneuerung Publikationen

Keller Grundlsee, 2024
Altmannsdorfer Straße 154–156, Wien 23
Hotterweg 35, Eisenstadt
Kutschkergasse 36, Wien 18
Mondscheingasse 11, Wien 7
Sterngasse 2, Wien 1
Gomperzgasse 1–5, Wien 16
Liebknechtgasse 32, Wien 16
Meierhof, Großhöflein
Scheibenbergstraße 13, Wien 18
Quellenstraße 75, Wien 10
Ada-Christen-Gasse 2/J/R01, Wien 10
Untere Augartenstraße 39, Wien 2
Gemeindeamt Pöttelsdorf
Kindergarten, Neckenmarkt
Kirchhofgasse 13, Wien 21, 2019
Kirchhofgasse 3, Wien 21
Elisenstraße 45, Wien 23
Percostraße 21, Wien 22
Barawitzkagasse, Wien 19
Bodenzeile 12, Purbach
Rokitanskygasse 6, Wien 17
Schulgasse 2 und 4, Purbach
Hügelmüllergasse 4, Wien 5
Felix-Mottl-Straße 31, Wien 19
Haus Pechar-Andres, Eichberg Trautenburg
Bodenzeile 18, Purbach
Linzerstraße 466–468, Wien 14
Kindergarten, Pöttelsdorf
Hernalser Gürtel 21, Wien 17
Hasnerstraße 59, Wien 16
Haus G, Klosterneuburg
Felix-Mottl-Straße, Wien 19
BewohnerInnenzentren, Wien
Appartementhaus W, Ulrichskirchen
Kinderkrippe Buchengasse, Wien 10
Dachgeschoßausbau Familie F, Wien 18
Lokalumbauten, Wien
Kindergarten, Neckenmarkt
Lokal Engerthstraße, Wien 2
Lokal Stinygasse, Wien 10
Lokal Rennbahnweg, Wien 22
ehemaliger Gemeindekeller, Purbach
Haus W, Pama
Wohnungsumbau Augarten, Wien 2
Mehrfamilienhaus Pötzleinsdorf,
Wien 18

Lokal Karl-Marx-Hof, Wien 19
Lokal Brünnerstraße, Wien 21
Lokal Rabenhof, Wien 3
Haus Z, Wien 23
Schneidergasse, Wien 11
Tagungszentrum Schönbrunn, Wien 13
Tagungszentrum Schönbrunn, Wien 13
Panikengasse 36, Wien 16
Altes Feuerwehrhaus, Purbach
I.O.I. Head Office Palais Rottal, Wien
Unteres Belvedere, Rampe Passage
Gut Purbach, Purbach
Arnethgasse 82, Wien 16
Löwengasse 16, Wien 3
Dachgeschosswohnung Familie K,
Wien 8

Seeböckgasse 12–14, Wien 16
Jheringgasse 31, Wien 15
Irrgarten Schönbrunn, Wien 13
Weinakademie, Rust
Gloriette, Eisenstadt
Haus W, Ulrichskirchen
Kesselhofhaus Hofburg, Wien
Hofüberdachung Rathaus, Bruck / Leitha
Maschinenhaus, Eisenstadt
Haus V, Stoob
Orangerie, Eisenstadt
Kindergarten, Pöttelsdorf
Haus S, Eisenstadt
Florianikapelle, Parndorf
Gemeindezentrum, Mischendorf
Haus S, Wien 14

 
Kiga Pöttelsdorf

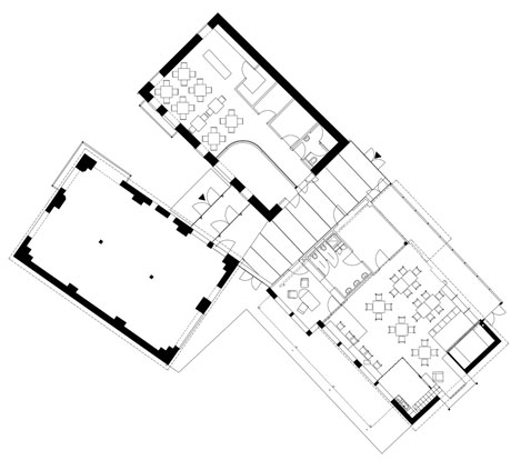
Kindergarten, Pöttelsdorf, 2001 und 2013
Revitalisierung der bestehenden Stadel, Zubau


Das Hauptaugenmerk des Entwurfes galt der Erhaltung und Revitalisierung der in Pöttelsdorf ortsbildprägenden Stadeln und deren Einbindung in das Gesamtkonzept des Kindergartens. Als Neubau wurde ein moderner Zweckbau errichtet, der in seiner architektonischen Ausprägung einen gestalterischen Gegensatz zum Sichtziegelmauerwerk der Scheunen bildet. Dazu wurde ein einfach kubischer Baukörper in Holzrahmenbauweise mit einem Ausbauraster von 1,8 m entwickelt. Die Fassaden- und Dachelemente aus Holzfertigteile ermöglichte eine kurze Aufstellungszeit.

Grundriss Erweiterung 1

Kiga Pöttelsdorf
 

Als Bindeglied zwischen dem Neubau und den beiden Scheunen dient eine neutrale Stahl-Glaskonstruktion. Der Kindergarten ist so konzipiert, dass er jederzeit um eine zweite Gruppe erweitert werden kann.
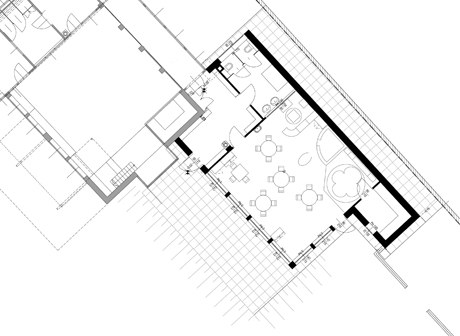
Der Freiraum des Kindergartens bietet unterschiedlich ausgestaltete Funktionsbereiche. Ein leicht geschwungener Erschließungsweg erstreckt sich über den ganzen Freibereich, an dem die unterschiedlichen Spielbereiche angeordnet sind.


Der Kindergarten wurde 2013 um einen weiteren Gruppenraum samt Nebenräumen erweitert, ohne dass dadurch der Betrieb des Kindergartens beeinträchtigt wurde.


Grundriss Erweiterung 2

Kigapoettelsdorf